22日我市71户经济适用房准购家庭抽签决定选房顺序
吴江楼市网 发布时间:2010-10-26 来源:吴江楼市网 点击数:6148
|
《办法》还对经济适用房的申购对象和申购程序进行了详细的规定,即家庭成员具有本市城镇常住户口满5年以上(含5年),现户口所在地为松陵镇、吴江经济开发区,家庭收入符合市人民政府确定的低收入及中等偏低收入家庭标准,并且现住房面积符合市人民政府确定的住房困难标准的,均可申购经济适用房。
此外《办法》还规定,经济适用房为有限产权房,不得出租、空置,购买经济适用住房不满5年(以房屋所有权证发证之日起计算年限),不得直接上市交易。
据了解选房顺序确定之后,准购户将于10月28日上午进行房型、面积的选定,并于11月上中旬签订购房合同并交付费用,所购住房初定于12月底之前交付使用。
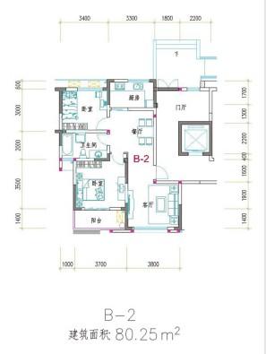
经济适用房户型图:


|
吴江房产网为您提供吴江房产信息和吴江二手房信息!了解更多吴江楼市请到www.wjls.com.cn

吴江二手房,租房,扫以上↑微信二维码关注

更多吴江楼市资讯,请扫以上↑微信二维码关注