楼市观察

22日我市71户经济适用房准购家庭抽签决定选房顺序
吴江楼市网  发布时间:2010-10-26  来源:吴江楼市网  点击数:6147

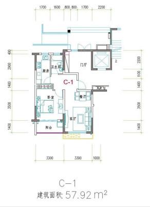
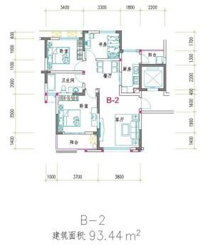
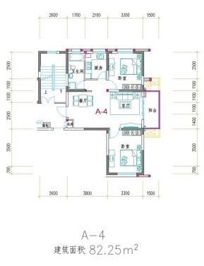
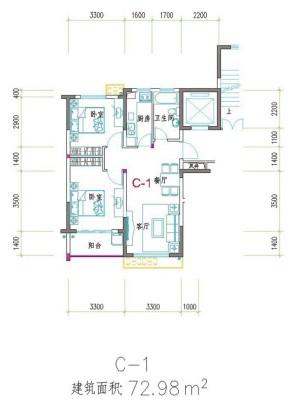
  经济适用房户型图:

          22日我市71户经济适用房准购家庭抽签决定选房顺序

           22日我市71户经济适用房准购家庭抽签决定选房顺序

           22日我市71户经济适用房准购家庭抽签决定选房顺序

           22日我市71户经济适用房准购家庭抽签决定选房顺序

           22日我市71户经济适用房准购家庭抽签决定选房顺序

           22日我市71户经济适用房准购家庭抽签决定选房顺序


  • 吴江二手房,租房,扫以上↑微信二维码关注

  • 更多吴江楼市资讯,请扫以上↑微信二维码关注

【上一页】    1      2     3   【下一页】

发表评论 (理智评论文明上网,拒绝恶意谩骂)